FOR LEASE
Link 480
480 Rantoul Street, Beverly MA
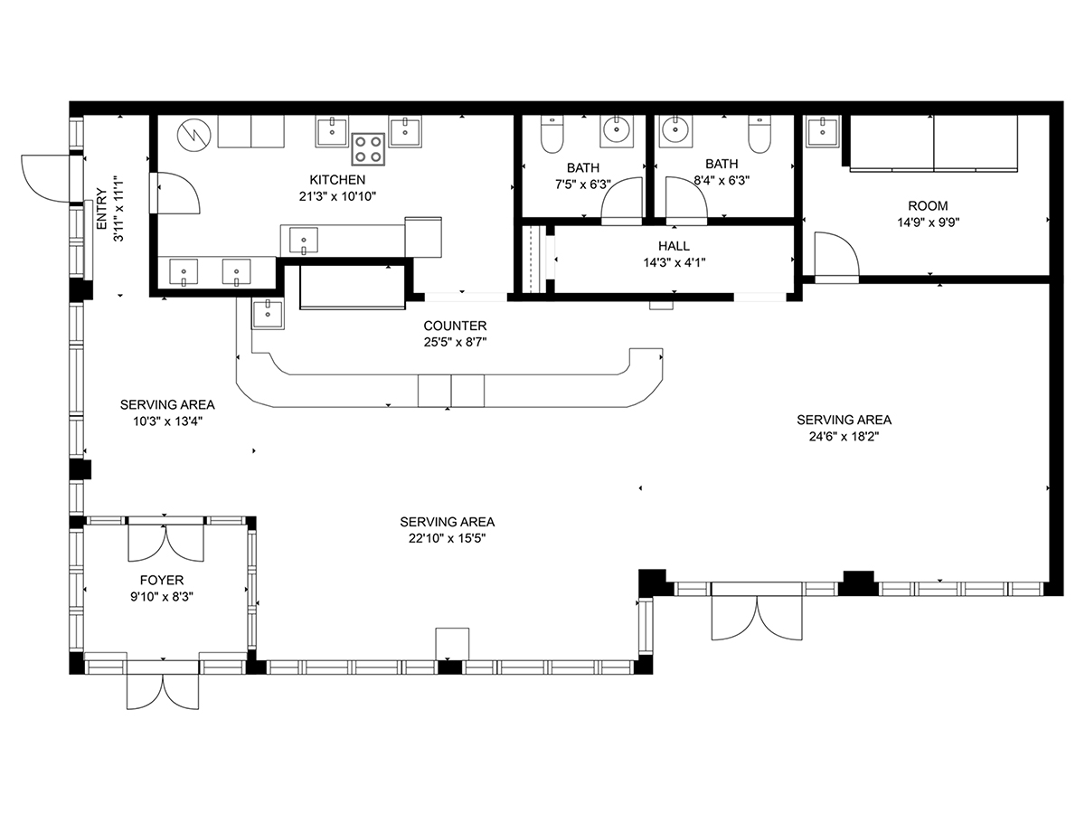
The Mega Group has available for lease street retail / professional service oriented space in downtown Beverly. Location is known as Link 480, a newly constructed in 2018 five-story mixed-use development in the Beverly Crossing collection of luxury apartment living. Situated “uptown” in Arthur E Baker Square, along the MBTA Commuter Rail Rockport line and close proximity to the Montserrat Train Station, Link 480 boasts 90 residential apartments above commercial space on the ground level.Available for immediate occupancy is 1,884 +/- square feet of prominent endcap space with high glass frontage wrapping around the corner unit providing excellent exposure to the many commuters and area residents. The Premises features two (2) handicap accessible bathrooms and a floor plan that offers a myriad of opportunity.
Beverly Massachusetts is a booming transit-oriented seaside community boasting several public beaches, four (4) commuter rail stations and quick access to Route 95 via Route 128. In addition to the thriving historic downtown area, the many local eateries are supported by its patrons of venues such as The Cabot and Larcom Theatre; other prominent destinations around the community include Endicott College, Landmark School and Cummings Center.
.























