INDUSTRIAL WAREHOUSE / DISTRIBUTION SPACE w DELIVERY DOCK
Beverly Industrial Park, 54 W Dane Street, Beverly MA
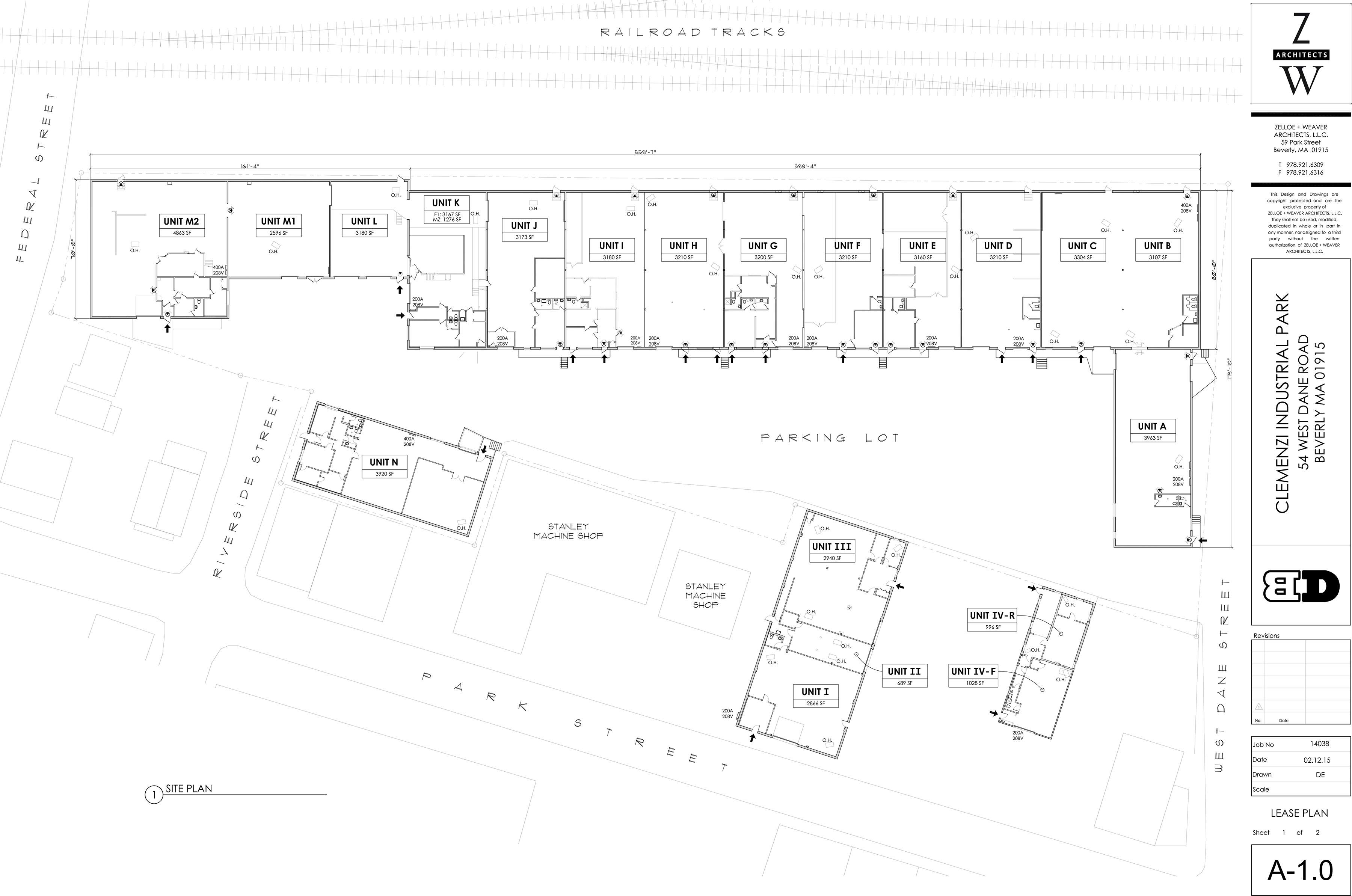
The Mega Group is pleased to make available for lease space in the Beverly Industrial Park, located at 54 West Dane Street near the Beverly Depot. Units feature a delivery dock, private bathroom and 200 amp electric service that is separately metered and are sprinklered. Currently available is Unit I, 3,180 +/- square feet in size, clear span and featuring 13+ feet of clear height with office space, private bathroom within the footprint of the unit and parking for four (4) vehicles. The office area consists of five (5) total rooms, three (3) private offices, reception area, break room and a private bathroom with a shower and an additional storage area. Attractive Modified Gross lease terms that includes Taxes, Insurance and CAM in the rent, utilities are separate.
The Beverly Industrial Park is 20-units of Industrial type space featuring 58,634 +/- rentable square feet of commercial space situated on 112,062 +/- square feet of land with 79 off-street parking spaces. The property was built in 1972 and is centrally located adjacent to the Britton Industrial Park, just off Route 62, about 3-miles from Route 128 N/S.
.





















